Vermietungen | Wohnen

Stilvolle Wohnungen im KfW40+ Baustand in OL / Eversten

˄ Bautenstand am 17.11.2024

˄ Die Wohnanlage von der Garten- bzw. Südseite

Hier erste Eckdaten bezüglich dieser stilvollen Wohnungen:

  • ruhige und gehobene Wohnlage in 26131 Oldenburg / Eversten
  • Alles neu! Erstbezug mit moderner und geschmackvoller Ausstattung und Ausgestaltung
  • ruhige und bevorzugte Wohnlage in Oldenburg / Eversten
  • Gebäude im KfW40+ - Baustandard mit Luftwärmepumpe
  • eigene Stromproduktion auf dem Gebäudedach und Stromspeicherung vor Ort
  • Fußbodenheizung, elektr. Rollläden, Lüftungsanlage etc
  • schöne - teilweise überdachte - Terrassen, Balkone und Dachterrassen
  • hochwertige Einbauküche
  • ansprechende Badausstattung
  • PKW-Stellplatz
  • uvm.
  • Mietbeginn: 01.03.2025

˄ Die Wohnanlage von der Eingangs- bzw. Nordseite

Die Lage:

Die verschiedenen Grundriss-Typen im EG, OG und DG:

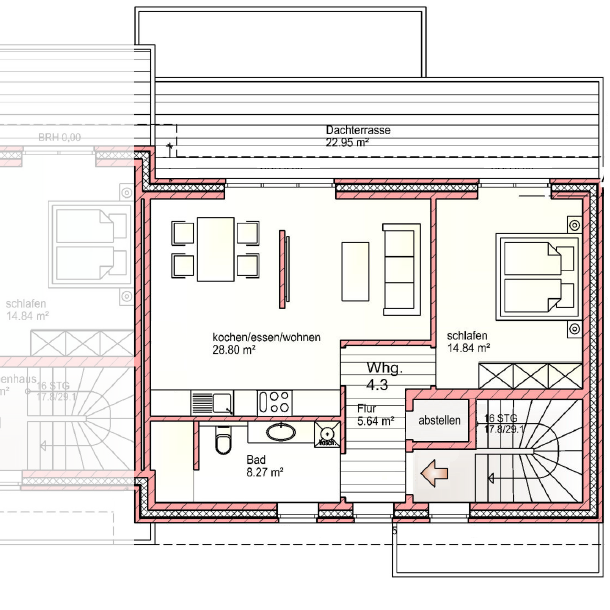
IM DACHGESCHOSS | Die Wohnungen 1.3

Raum: Fläche
Wohnen, Essen & Kochen: 28,80 m²
Schlafen: 14,84 m²
Kind / Büro / Gast: ./.
Bad: 8,27 m²
HWR: ./.
Flur: 5,64 m²
Abstellraum: 1,43 m²
Überdachte Terrasse - zu 1/2: (1/1 = 24,01 m²) 12,05 m²
Wohnfläche: 71,03 m²
separater Abstellraum im Schuppen: 3,32 m²
Grundrisse des Dachgeschosses
Grundrisse des Dachgeschosses
20241223_DG_Grundrisse.pdf
PDF-Dokument [14.0 MB]

Die zukünftigen Küchen im EG, 1.OG und 2.OG:

Ausstattungsdetails der Küchen:

  • Einbaugeräte von Bosch Backofen 60/60 mit Induktionskochfeld rahmenlos aufliegend Farbe schwarz
  • Abzugshaube Bosch
  • Bosch vollintegrierter Geschirrspüler 60cm
  • Bosch Einbaukühlschrank mit Gefrierfach 122,5/56cm
  • Spüle schwarz, Granit
  • Grille schwarz, Armaturen schwarz

Der Bodenbelag:

˄ Der zukünftige Bodenbelag aus Vinly in Eichenoptik

Das Grundstück:

Das gesamte Wohnungsangebot dieser Wohnanlage:

[Vermietungsstand am 07.01.2025, Nummerierung von der Nord-/Eingangsseite

˄ Die Wohnanlage von der Eingangs- bzw. Nordseite

  Haus 1

Haus 2

Haus 3 Haus 4
  Wangerooger Str. 21 Wangerooger Str. 23 Wangerooger Str. 25 Wangerooger Str. 27

DG

WHG 1.3

3 Zi | 70,99 m²

995 € Miete

200 (warme) NK

vermietet

WHG 2.3

3 Zi | 70,98 m²

995 € Miete

200 (warme) NK

vermietet

WHG 3.3

3 Zi | 70,99 m²

995 € Miete

200 (warme) NK

vermietet

WHG 4.3

3 Zi | 70,99 m²

995 € Miete

200 (warme) NK

vermietet

 
 

OG

WHG 1.2

3 Zi | 84,47 m²

1.125 € Miete

200 (warme) NK

vermietet

WHG 2.2

3 Zi | 84,12 m²

1.125 € Miete

200 (warme) NK

vermietet

WHG 3.2

3 Zi | 84,12 m²

1.125 € Miete

200 (warme) NK

vermietet

WHG 4.2

3 Zi | 84,12 m²

1.125 € Miete

200 (warme) NK

vermietet

 
         
EG

WHG 1.1

3 Zi | 84,17 m²

ca.87m² Garten

1.165 € Miete

200 (warme) NK

vermietet

WHG 2.1

3 Zi | 83,92 m²

ca.76m² Garten

1.160 € Miete

200 (warme) NK

vermietet

WHG 3.1

3 Zi | 83,92 m²

ca.85m² Garten

1.160 € Miete

200 (warme) NK
vermietet

WHG 4.1

3 Zi | 83,92 m²

ca.150m² Garten

1.195 € Miete

200 (warme) NK

vermietet

Die Nummerierung von der Süd-/Gartenseite aus betrachtet:

Der Energiebedarf:

  • Art des Energieausweises: Bedarfsausweis
  • Erstellungsdatum: 16.11.2024 (Energiebedarfsberechnung vor Fertigstellung)
  • Endenergiebedarf: 5,1 kWh/(m². a)
  • wesentlicher Energieträger: mit Strom betriebene Luftwärmepumpe

Weitere Informationen:

Sie möchten weitere Informationen über dieses Immobilien-Angebot erhalten?

Senden Sie mir dazu einfach das folgende Kontaktformular ausgefüllt zu.

Ihre Formularnachricht wurde erfolgreich versendet.
Sie haben folgende Daten eingegeben:



Bitte korrigieren Sie Ihre Eingaben in den folgenden Feldern:
Beim Versenden des Formulars ist ein Fehler aufgetreten. Bitte versuchen Sie es später noch einmal.

Hinweis: Felder, die mit * bezeichnet sind, sind Pflichtfelder.