Vermietungen |Gewerbe

Oldenburg | Büroetagen in bester Lage!

26135 Oldenburg, Huntestraße 14a

Die zentrale und schöne Lage:

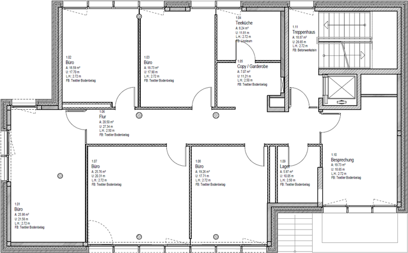
Die Büro-Etage im 1. Obergeschoss:

Die Eckdaten:

  • ca. 184 m² Fläche
  • ca. 18 m² anteilige Sanitärfläche
  • = 202 m² anzumietende Fläche
  • Kaltmiete: 13,50 €/m²
  • HBK-Abschlag: 5,50 €/m²
  • PKW-Stellplatz: 80 € auf Außenparkplatz, 115 € in der Tiefgarage
  • Maklercourtage: 2 Kaltmieten zzgl. MwSt: 5.454 € (netto)
Nr. Raum Nutzung Fläche
1 1.01 Büro 25,98 m²
2 1.02 Büro 18,59 m²
3 1.03 Büro 18,73 m²
4 1.04 Teeküche 8,24 m²
5 1.05 Copy / Garderobe 7,07 m²
6 1.06 Flur 20,50 m²
7 1.07 Büro 25,76 m²
8 1.08 Büro 19,26 m²
9 1.09 Lager 5,97 m²
10 1.10 Besprechung 19,73 m²
   

Zwischensumme

169,83 m²
    anteilige Sanitärfläche (54,61 % von 32 m²) 17,48 m²
    Gesamtfläche 187,31 m²

˄ Falls hier keine Vorschau angezeigt wird: Hier geht es direkt zum 360°-Rundgang

Die Büro-Etage im 2. Obergeschoss:

Die Eckdaten:

  • ca. 142 m² Fläche
  • ca. 14 m² anteilige Sanitärfläche
  • = 156 m² anzumietende Fläche
  • Kaltmiete: 13,50 €/m²
  • HBK-Abschlag: 5,50 €/m²
  • PKW-Stellplatz: 80 € auf Außenparkplatz, 115 € in der Tiefgarage
  • Maklercourtage: 2 Kaltmieten zzgl. MwSt: 4.212 € (netto)
Nr. Raum Nutzung Fläche
1 2.01 Büro 26,68 m²
2 2.02 Büro 18,59 m²
3 2.03 Büro 18,72 m²
4 2.04 Teeküche 8,39 m²
5 2.05 Copy / Garderobe 7,07 m²
6 2.06 Flur 17,43 m²
7 2.07 Büro 25,06 m²
8 2.08 Büro 19,21 m²
   

Zwischensumme

141,15 m²
    anteilige Sanitärfläche (54,61 % von 32 m²) 14,52 m²
    Gesamtfläche 155,67 m²

˄ Falls hier keine Vorschau angezeigt wird: Hier geht es direkt zum 360°-Rundgang

Weitere Informationen:

Sie möchten weitere Informationen über dieses Immobilien-Angebot erhalten?

Senden Sie mir dazu einfach das folgende Kontaktformular ausgefüllt zu.

Ihre Formularnachricht wurde erfolgreich versendet.
Sie haben folgende Daten eingegeben:



Bitte korrigieren Sie Ihre Eingaben in den folgenden Feldern:
Beim Versenden des Formulars ist ein Fehler aufgetreten. Bitte versuchen Sie es später noch einmal.

Hinweis: Felder, die mit * bezeichnet sind, sind Pflichtfelder.

Ist Ihr Wunsch-Angebot hier nicht dabei?

Senden Sie uns gerne Ihre Kontaktdaten, damit wir Ihnen z.B. auch Angebote vorstellen können, die wir im Interessse der Eigentümer nur diskret anbieten sollen.

Ihre Formularnachricht wurde erfolgreich versendet.
Sie haben folgende Daten eingegeben:

Kontaktformular

Bitte korrigieren Sie Ihre Eingaben in den folgenden Feldern:
Beim Versenden des Formulars ist ein Fehler aufgetreten. Bitte versuchen Sie es später noch einmal.

Hinweis: Felder, die mit * bezeichnet sind, sind Pflichtfelder.