Gewerbe-Immobilien

Wohnen & Arbeiten in zentraler Lage Oldenburgs

Ideale Kombination aus Ausstellung (EG), Büro (DG) und Lager (Keller + Garage)

Die Eckdaten:

  • zentrale und ruhige Lage in Oldenburg / Osternburg
  • 201 m² Grundstückfläche
  • energieeffizientes Gebäude aus dem Baujahr 1997
  • ca. 184 m² Fläche insgesamt, verteilt auf
    • Erdgeschoss: ca. 57 m²
    • Dachgeschoss: ca. 55 m²
    • Kellergeschoss: ca. 56 m²
    • Garage: ca. 20 m²
  • Kaufpreisvorstellung des Eigentümers: 449.500 €
  • zzgl. 3 % Maklercourtage inkl. MwSt.

Die Lage:

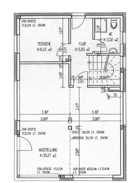
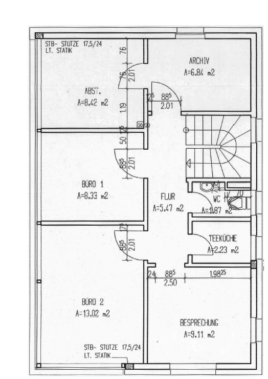
Die Grundrisse: Erdgeschoss | Dachgeschoss | Kellergeschoss

Die vorhandenen Nutzflächen:

Geschoss Raum Nutzfläche  
Erdgeschoss: Ausstellung:

39,27 m²

 
  Flur: 5,93 m²  
  Teeküche: 8,42 m²  
  WC: 3,52 m²  
    EG gesamt: 57,14 m²
       
Dachgeschoss:

Flur:

5,47 m²  
  WC: 1,87 m²  
  Teeküche: 2,23 m²  
  Besprechung: 9,11 m²  
  Büro 2: 13,02 m²  
  Büro 1: 8,33 m²  
  Archiv / Büro 3: 6,84 m²  
  Abstellraum / Büro 4: 8,42 m²  
    DG gesamt: 55,29 m²
       
Kellergeschoss: Flur:  2,52 m²  
  Abstellraum 1: 6,16 m²  
  Lager:  21,87 m²  
  Abstellraum 2: 8,50 m²  
  Abstellraum 3:  9,78 m²  
  Heizung:  7,09 m²  
    KG gesamt: 55,92 m²
       
Garage:   Garage gesamt:  ca. 20,00 m²
       
    Nutzfläche gesamt:  ca. 188,35 m²

Ein 360°-Rundgang:

Energieausweis:

  • Art des Energieausweises: Bedarfsausweis
  • Erstellungsdatum: in Aktualisierung
  • Endenergiebedarf: 30,8 kWh/(m²a) | Energieeffizienzklasse A
  • wesentlicher Energieträger: Gas

Sehr geehrte Miet- und Kaufinteressenten für Gewerbe-Immobilien!

 

Aktuell habe ich keine weiteren Angebote, die ich öffentlich anbieten kann. Da ich ständig mit potentiellen Vermietern und Verkäufern im Gespräch bin ist es jedoch eine Frage der Zeit, wann ich für Sie eine passende Gerwerbe-Immobilie gefunden habe. Hinterlassen Sie am besten Ihre Kontaktdaten über das folgende Formular, damit ich Sie schnellstmöglich informieren kann.

 

Ihre Formularnachricht wurde erfolgreich versendet.
Sie haben folgende Daten eingegeben:

Ihre Kontaktdaten:

Bitte korrigieren Sie Ihre Eingaben in den folgenden Feldern:
Beim Versenden des Formulars ist ein Fehler aufgetreten. Bitte versuchen Sie es später noch einmal.

Hinweis: Felder, die mit * bezeichnet sind, sind Pflichtfelder.